Phoenix - 16603A

Built by Cavco Hamlet

Manufactured

Home  •  Floor Plans  •  Phoenix – 16603A

Overview

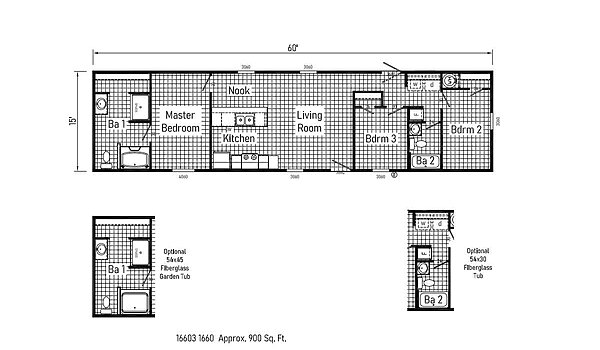
The Phoenix / 16603A built by Cavco Hamlet offers a bright and efficient layout with 3 bedrooms, 2 bathrooms, and 900 square feet. The 16603A features a cozy living room that connects to a practical kitchen and nook, giving you a comfortable place to cook and relax. The master bedroom includes its own bath, while two more bedrooms share a second bath. This well-designed home makes the most of every inch to create easy, enjoyable living.
Bedrooms 3
Bathrooms 2.00
Square Feet 900
Length 60' 0"
Width 16' 0"
Sections 1
Stories 1
Style Ranch

Tours and Videos

No 3d Tour Available

Specifications

Ac Ready: Yes
Floor Joists: 2x8 Floor Joist
Insulation Zone: Zone 3 R30-11-11 Insulation
Front Door: Steel Front Door w/Storm / Shutters Front Door Side
Other: Exterior Faucet
Rear Door: Cottage Rear Door
Window Type: Thermopane Windows
Exterior Lighting: Exterior Lights - Front and Rear Door
Ceiling Texture: 8ft Flat Ceilings T/O / Stomped Ceiling
Interior Lighting: LED Can Lights T/O
Water Heater: 40 Gallon Electric Water Heater
Water Shut Off Valves: Whole House Water Cut Off
Bathroom Flooring: Vinyl Flooring T/O
Bathroom Shower: Garden Tub and Sperate Shower
Kitchen Flooring: Vinyl Flooring T/O
Kitchen Faucets: Metal faucets
Kitchen Dishwasher: Yes
Kitchen Cabinetry: Module Craft Cabinet System / 30" Overhead / Adjustable Shelves / Shelf above Refrigerator / Pantry / Utility Shelf

Gallery

Please Note

All sizes and dimensions are nominal or based on approximate manufacturer measurements. 3D Tours and photos may include retailer and/or factory installed options. Carolina Homes of Ocean Isle Beach reserves the right to make changes due to any changes in material, color, specifications, and features at any time without notice or obligation.